OA-0209 Bouwvergunningen Gemeente Zaanstad, 1974-1983
OA-0209
Bouwvergunningen Gemeente Zaanstad, 1974-1983
Inleiding
laatste wijziging 03-04-2025
30.951 beschreven archiefstukken
24.446 gedigitaliseerd
totaal 24.446 bestanden
Inventaris
OA-0209 Bouwvergunningen Gemeente Zaanstad, 1974-1983
162
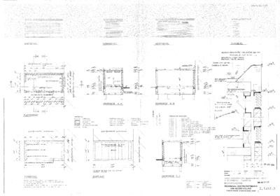
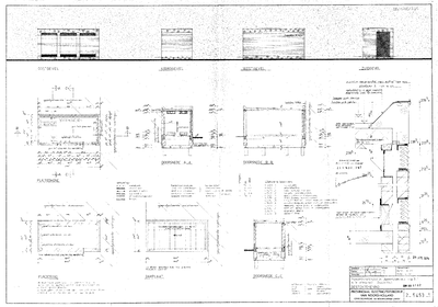
Bouwen van een transformatorstation, 1974-07-23
laatste wijziging 15-05-2024
4 gedigitaliseerd
totaal 4 bestanden
laatste wijziging 03-04-2025
30.951 beschreven archiefstukken
24.446 gedigitaliseerd
totaal 24.446 bestanden
Kenmerken
Datering:
1974-1983
Gemeente:
Zaanstad
Omvang in meters:
23,4
Openbaar:
Gedeeltelijk
Bijzonderheden archiefvormer:
1e hybride archief (digitaal en papier), in 2021 overgedragen aan GAZ alsmede digitale dossiers of hybride dossiers.
Citeerinstructie:
Bij het citeren in annotatie en verantwoording dient het archief tenminste eenmaal volledig en zonder afkortingen te worden vermeld.
Daarna kan worden volstaan met verkorte aanhaling.
VOLLEDIG:
Gemeentearchief Zaanstad. Toegang OA-0209 Bouwvergunningen Gemeente Zaanstad, 1974-1983
VERKORT:
NL-ZdGAZOA-0209
Daarna kan worden volstaan met verkorte aanhaling.
VOLLEDIG:
Gemeentearchief Zaanstad. Toegang OA-0209 Bouwvergunningen Gemeente Zaanstad, 1974-1983
VERKORT:
NL-ZdGAZOA-0209
Categorie:
laatste wijziging 03-04-2025
30.951 beschreven archiefstukken
24.446 gedigitaliseerd
totaal 24.446 bestanden
Mijn Studiezaal (inloggen)


