OA-0210 Bouwvergunningen Gemeente Zaanstad 1984-1993
Uitleg bij archieftoegang

Een archieftoegang geeft uitgebreide informatie over een bepaald archief.

Een archieftoegang bestaat over het algemeen uit de navolgende onderdelen:

• Kenmerken van het archief
• Inleiding op het archief
• Inventaris of plaatsingslijst
• Eventueel bijlagen

De kenmerken van het archief zijn o.m. de omvang, vindplaats, beschikbaarheid, openbaarheid en andere.

De inleiding op het archief bevat interessante informatie over de geschiedenis van het archief, achtergronden van de archiefvormer en kan ook aanwijzingen voor het gebruik bevatten.

De inventaris of plaatsingslijst is een hiërarchisch opgebouwd overzicht van beschreven archiefstukken. De beschrijvingen zijn formeel en globaal. Het lezen en begrijpen van een inventaris behoeft enige oefening en ervaring.

Bij het zoeken in de inventaris wordt de hiërarchie gevolgd. De rubrieken in de inventaris maken deel uit van de beschrijving op een lager niveau. Komt de zoekterm in een hoger niveau voor, dan voldoen onderliggende niveaus ook aan de zoekvraag.

beacon
Inleiding
1. Geschiedenis van de archiefvormer
2. Geschiedenis van het archief
3. Openbaarheid
4. Verantwoording van de bewerking
5. Handleiding voor de gebruiker
6. Archiefvormers
Inventaris
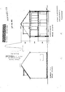
109 Bouwen van een dakkapel, 1988-04-26
2007527111 of 2007/35585_2 Versie 2 van document 2007527111 of 2007/35585
Erfgoedstuk
OA-0210 Bouwvergunningen Gemeente Zaanstad 1984-1993
Inventaris
109 Bouwen van een dakkapel, 1988-04-26
2007527111 of 2007/35585_2
Versie 2 van document 2007527111 of 2007/35585
Erfgoedstuk
Beschrijving:
Versie 2 van document 2007527111 of 2007/35585
Records 101 t/m 200
Records 201 t/m 300
Records 301 t/m 400
Records 401 t/m 500
Records 501 t/m 600
Records 601 t/m 700
Records 701 t/m 800
Records 801 t/m 900
Records 901 t/m 1000
Records 1001 t/m 1100
Records 1101 t/m 1200
Records 1201 t/m 1300
Records 1301 t/m 1400
Records 1401 t/m 1500
Records 1501 t/m 1600
Records 1601 t/m 1700
Records 1701 t/m 1800
Records 1801 t/m 1900
Records 1901 t/m 2000
Records 2001 t/m 2100
Records 2101 t/m 2200
Records 2201 t/m 2300
Records 2301 t/m 2400
Records 2401 t/m 2500
Records 2501 t/m 2600
Records 2601 t/m 2700
Records 2701 t/m 2800
Records 2801 t/m 2900
Records 2901 t/m 3000
Records 3001 t/m 3100
Records 3101 t/m 3200
Records 3201 t/m 3300
Records 3301 t/m 3400
Records 3401 t/m 3500
Records 3501 t/m 3600
Records 3601 t/m 3700
Records 3701 t/m 3800
Records 3801 t/m 3900
Records 3901 t/m 4000
Records 4001 t/m 4100
Records 4101 t/m 4200
Records 4201 t/m 4300
Records 4301 t/m 4400
Records 4401 t/m 4500
Records 4501 t/m 4600
Records 4601 t/m 4700
Records 4701 t/m 4800
Records 4801 t/m 4900
Records 4901 t/m 5000
Records 5001 t/m 5100
Records 5101 t/m 5200
Records 5201 t/m 5300
Records 5301 t/m 5400
Records 5401 t/m 5500
Records 5501 t/m 5600
Records 5601 t/m 5700
Records 5701 t/m 5800
Records 5801 t/m 5856

Kenmerken

Datering:
1984-1993
Gemeente:
Zaanstad
Omvang in meters:
52,4
Toegankelijkheid:
Ja
Citeerinstructie:
Bij het citeren in annotatie en verantwoording dient het archief tenminste eenmaal volledig en zonder afkortingen te worden vermeld.
Daarna kan worden volstaan met verkorte aanhaling.
VOLLEDIG:
Gemeentearchief Zaanstad. Toegang OA-0210 Bouwvergunningen Gemeente Zaanstad 1984-1993
VERKORT:
NL-ZdGAZOA-0210