Bouwdossiers en vergunningen
OA-0209 Bouwvergunningen Gemeente Zaanstad, 1974-1983

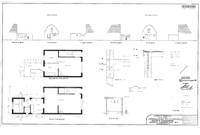
6825 Vergroten van de aanbouw, 1980-05-19
Datering:
1980-05-19
Beschrijving:
Vergroten van de aanbouw
Aanwezige documenten:
Digitale documenten
Oud dossiernummer:
DSOW/BV01/6825
Ga naar dit stuk:
laatste wijziging 15-05-2024
4 gedigitaliseerd
totaal 4 bestanden
Mijn Studiezaal (inloggen)