Bouwdossiers en vergunningen
OA-0209 Bouwvergunningen Gemeente Zaanstad, 1974-1983

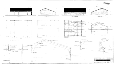
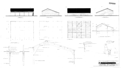
8586 Bouwen van een veldschuur, 1983-05-30
Datering:
1983-05-30
Beschrijving:
Bouwen van een veldschuur
Aanwezige documenten:
Papieren en digitale documenten
Oud dossiernummer:
DSOW/BV01/8586
Opmerking:
2 mappen
Ga naar dit stuk:
Bevat:
laatste wijziging 15-05-2024
4 gedigitaliseerd
totaal 4 bestanden
Mijn Studiezaal (inloggen)