OA-0210 Bouwvergunningen Gemeente Zaanstad 1984-1993
OA-0210
Bouwvergunningen Gemeente Zaanstad 1984-1993
Inleiding
laatste wijziging 13-08-2025
35.502 beschreven archiefstukken
27.472 gedigitaliseerd
totaal 27.472 bestanden
Inventaris
OA-0210 Bouwvergunningen Gemeente Zaanstad 1984-1993
106
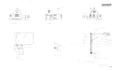
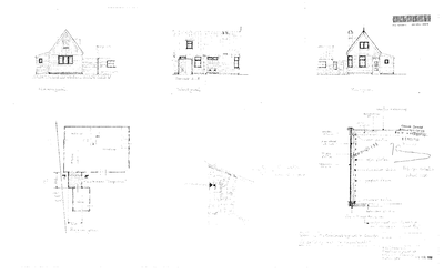
Bouwen van een aanbouw, 1988-05-10
laatste wijziging 13-08-2025
35.502 beschreven archiefstukken
27.472 gedigitaliseerd
totaal 27.472 bestanden
Kenmerken
Datering:
1984-1993
Gemeente:
Zaanstad
Omvang in meters:
52,4
Toegankelijkheid:
Ja
Licentie:
Citeerinstructie:
Bij het citeren in annotatie en verantwoording dient het archief tenminste eenmaal volledig en zonder afkortingen te worden vermeld.
Daarna kan worden volstaan met verkorte aanhaling.
VOLLEDIG:
Gemeentearchief Zaanstad. Toegang OA-0210 Bouwvergunningen Gemeente Zaanstad 1984-1993
VERKORT:
NL-ZdGAZOA-0210
Daarna kan worden volstaan met verkorte aanhaling.
VOLLEDIG:
Gemeentearchief Zaanstad. Toegang OA-0210 Bouwvergunningen Gemeente Zaanstad 1984-1993
VERKORT:
NL-ZdGAZOA-0210
Categorie:
laatste wijziging 13-08-2025
35.502 beschreven archiefstukken
27.472 gedigitaliseerd
totaal 27.472 bestanden
Mijn Studiezaal (inloggen)



Creative Commons (CC BY 4.0)