Bouwdossiers en vergunningen
OA-0209 Bouwvergunningen Gemeente Zaanstad, 1974-1983

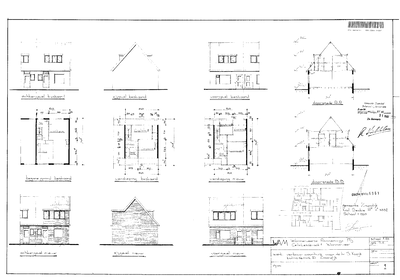
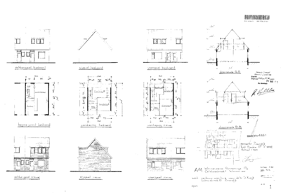
6961 Vergroten van een dakkapel, 1980-03-31
Datering:
1980-03-31
Beschrijving:
Vergroten van een dakkapel
Aanwezige documenten:
Digitale documenten
Oud dossiernummer:
DSOW/BV01/6961
Ga naar dit stuk:
Bevat:
laatste wijziging 15-05-2024
4 gedigitaliseerd
totaal 4 bestanden
Mijn Studiezaal (inloggen)