Bouwdossiers en vergunningen
OA-0209 Bouwvergunningen Gemeente Zaanstad, 1974-1983
Inventaris

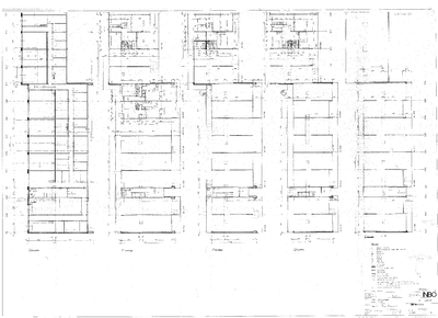
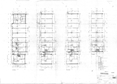
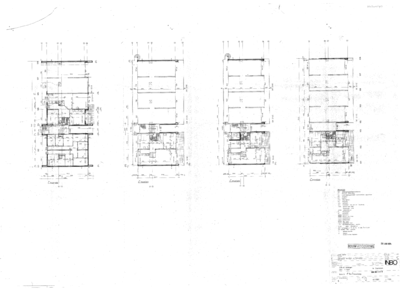
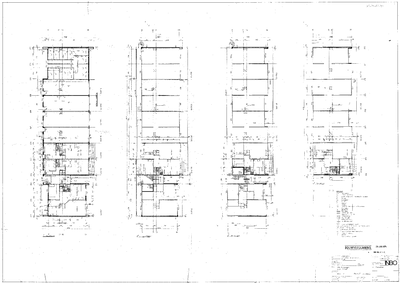
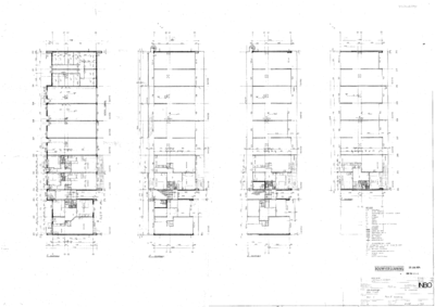
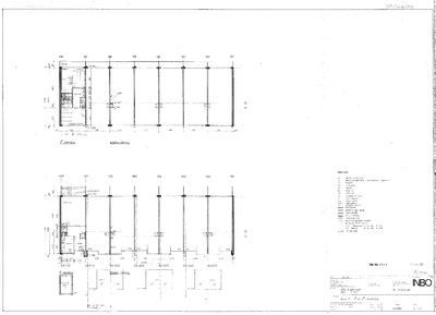
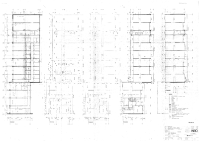
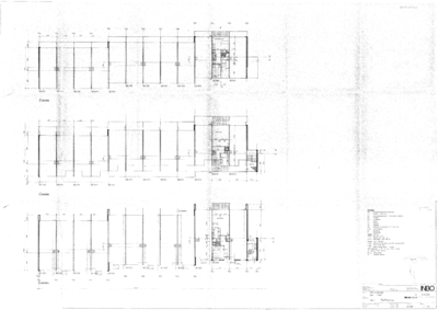
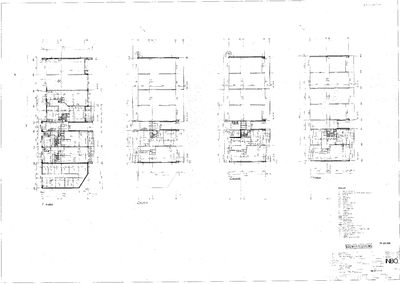
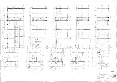
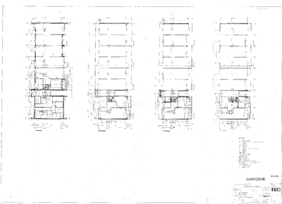
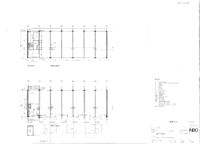
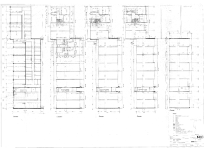
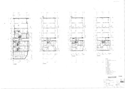
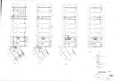
545 Bouwen van 236 woningen, 1974-06-25
Datering:
1974-06-25
Beschrijving:
Bouwen van 236 woningen
Adres:
Zaandam, Bergumermeer 15, 17, 19, 21, 23, 25, 27, 29, 31, 33, 35, 37, 39, 41, 43, 45, 47, 49, 51, 53, 55, 57, 59
Zaandam, Bolksbeek 2, 4, 6, 8, 10, 12, 14, 16, 18, 20, 22, 24, 26, 28, 30, 32, 34, 36, 38, 40, 42, 44, 46, 48, 50, 52, 54, 56, 58, 60, 62, 64, 66, 68, 70, 72, 74, 76, 78, 80, 82, 84, 86, 88, 90, 92, 94, 96, 98, 100, 102, 104, 106, 108, 110, 112, 114, 116, 118, 120, 122, 124, 126, 128, 130, 132, 134, 136, 138, 140, 142, 144, 146, 148
Zaandam, Eefsebeek 9, 10, 11, 12, 13, 14, 15, 16, 17, 18, 19, 20, 21, 22, 23, 24, 25, 26, 27, 28, 29, 30, 31, 32, 33, 34, 35, 36, 37, 38, 39, 40, 41, 42, 43, 44
Zaandam, Glanerbeek 1, 2, 3, 4, 5, 6, 7, 8, 9, 10, 11, 12, 13, 14, 15, 16, 17, 18, 19, 20, 21, 22, 23, 24
Zaandam, Klingelbeek 1, 3, 5, 7, 9, 11, 13, 2, 4, 6, 8, 10, 12
Zaandam, Zwartemeer 48, 49, 50, 51, 52, 53, 54, 55, 56, 57, 58, 59, 60, 61, 62, 63, 64, 65, 66, 67, 68, 69, 70, 71, 72, 73, 74, 75, 76, 77, 78, 79, 80, 81, 82, 83, 84, 85, 86, 87, 88, 89, 90, 91
Aanwezige documenten:
Papieren en digitale documenten
Oud dossiernummer:
DSOW/BV01/545
Opmerking:
2 mappen
Ga naar dit stuk:
Bevat:
laatste wijziging 01-04-2025
34 gedigitaliseerd
totaal 34 bestanden
Mijn Studiezaal (inloggen)