Bouwdossiers en vergunningen
OA-0209 Bouwvergunningen Gemeente Zaanstad, 1974-1983

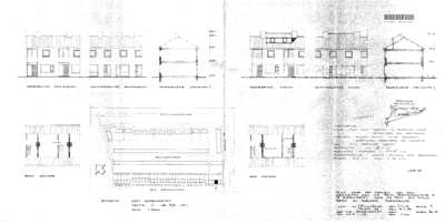
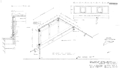
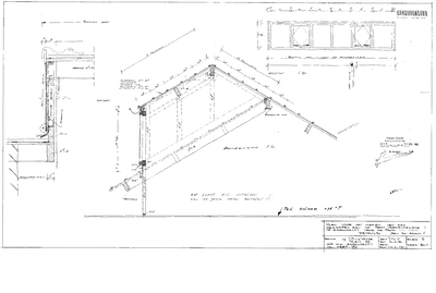
8634 Plaatsen van een dakkapel, 1980-03-17
Datering:
1980-03-17
Beschrijving:
Plaatsen van een dakkapel
Aanwezige documenten:
Digitale documenten
Oud dossiernummer:
DSOW/BV01/8634
Ga naar dit stuk:
Bevat:
laatste wijziging 15-05-2024
6 gedigitaliseerd
totaal 6 bestanden
Mijn Studiezaal (inloggen)