Bouwdossiers en vergunningen
OA-0209 Bouwvergunningen Gemeente Zaanstad, 1974-1983

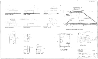
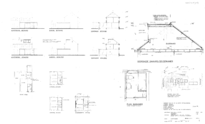
5251 Plaatsen van een dakkapel, 1981-02-09
Datering:
1981-02-09
Beschrijving:
Plaatsen van een dakkapel
Aanwezige documenten:
Digitale documenten
Oud dossiernummer:
DSOW/BV01/5251
Ga naar dit stuk:
laatste wijziging 15-05-2024
4 gedigitaliseerd
totaal 4 bestanden
Mijn Studiezaal (inloggen)