Bouwdossiers en vergunningen
OA-0210 Bouwvergunningen Gemeente Zaanstad 1984-1993

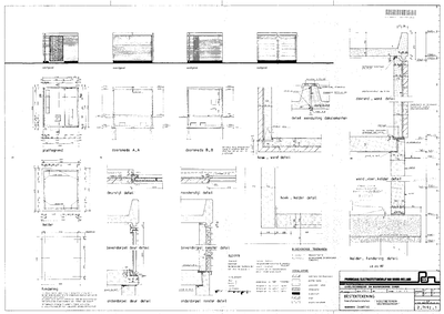
1730 Bouwen van een transformatorstation, 1987-11-24
Datering:
1987-11-24
Beschrijving:
Bouwen van een transformatorstation
Aanwezige documenten:
Papieren en digitale documenten
Oud dossiernummer:
DSOW/BV02/1730
Ga naar dit stuk:
Bevat:
laatste wijziging 15-05-2024
6 gedigitaliseerd
totaal 6 bestanden
Mijn Studiezaal (inloggen)