Bouwdossiers en vergunningen
OA-0210 Bouwvergunningen Gemeente Zaanstad 1984-1993

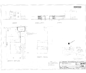
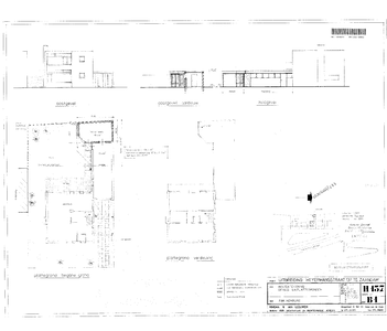
1895 Bouwen van een hobbyruimte
Heijermansstraat 137 te Zaandam, 1992-03-24
Heijermansstraat 137 te Zaandam, 1992-03-24
Datering:
1992-03-24
Beschrijving:
Bouwen van een hobbyruimte
Heijermansstraat 137 te Zaandam
Heijermansstraat 137 te Zaandam
Aanwezige documenten:
Digitale documenten
Oud dossiernummer:
DSOW/BV02/1895
Ga naar dit stuk:
Bevat:
laatste wijziging 15-05-2024
4 gedigitaliseerd
totaal 4 bestanden
Mijn Studiezaal (inloggen)