Bouwdossiers en vergunningen
OA-0210 Bouwvergunningen Gemeente Zaanstad 1984-1993

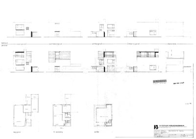
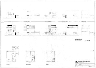
2089 Bouwen van een dakopbouw, 1985-06-18
Datering:
1985-06-18
Beschrijving:
Bouwen van een dakopbouw
Aanwezige documenten:
Digitale documenten
Oud dossiernummer:
DSOW/BV02/2089
Ga naar dit stuk:
Bevat:
laatste wijziging 15-05-2024
4 gedigitaliseerd
totaal 4 bestanden
Mijn Studiezaal (inloggen)