Bouwdossiers en vergunningen
OA-0209 Bouwvergunningen Gemeente Zaanstad, 1974-1983

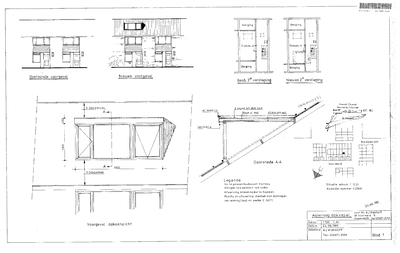
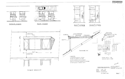
8252 Plaatsen van een dakkapel, 1982-10-04
Datering:
1982-10-04
Beschrijving:
Plaatsen van een dakkapel
Aanwezige documenten:
Digitale documenten
Oud dossiernummer:
DSOW/BV01/8252
Ga naar dit stuk:
laatste wijziging 15-05-2024
4 gedigitaliseerd
totaal 4 bestanden
Mijn Studiezaal (inloggen)