Bouwdossiers en vergunningen
OA-0210 Bouwvergunningen Gemeente Zaanstad 1984-1993

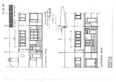
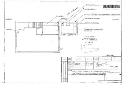
495 Vergroten van de woning, 1989-12-31
Datering:
1989-12-31
Beschrijving:
Vergroten van de woning
Aanwezige documenten:
Digitale documenten
Oud dossiernummer:
DSOW/BV02/495
Ga naar dit stuk:
Bevat:
laatste wijziging 15-05-2024
10 gedigitaliseerd
totaal 10 bestanden
Mijn Studiezaal (inloggen)