Bouwdossiers en vergunningen
OA-0209 Bouwvergunningen Gemeente Zaanstad, 1974-1983

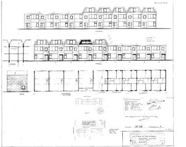
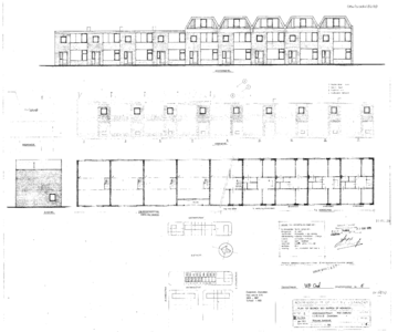
5837 Bouwen van een dakbouw, 1979-03-27
Datering:
1979-03-27
Beschrijving:
Bouwen van een dakbouw
Aanwezige documenten:
Digitale documenten
Oud dossiernummer:
DSOW/BV01/5837
Ga naar dit stuk:
laatste wijziging 15-05-2024
4 gedigitaliseerd
totaal 4 bestanden
Mijn Studiezaal (inloggen)