Bouwdossiers en vergunningen
OA-0209 Bouwvergunningen Gemeente Zaanstad, 1974-1983

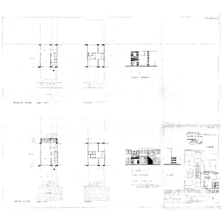
2977 Bouwen van een aanbouw, 1976-09-28
Datering:
1976-09-28
Beschrijving:
Bouwen van een aanbouw
Oud dossiernummer:
DSOW/BV01/2977
Ga naar dit stuk:
laatste wijziging 15-05-2024
4 gedigitaliseerd
totaal 4 bestanden
Mijn Studiezaal (inloggen)