Bouwdossiers en vergunningen
OA-0210 Bouwvergunningen Gemeente Zaanstad 1984-1993

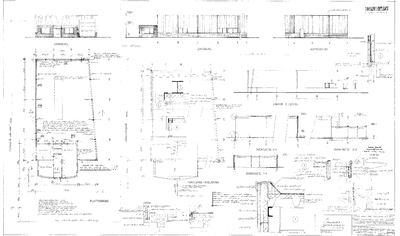
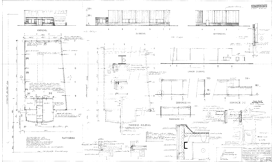
7227 Bouwen van een bedrijfsgebouw met kantoorruimte, 1992-09-08
Datering:
1992-09-08
Beschrijving:
Bouwen van een bedrijfsgebouw met kantoorruimte
Aanwezige documenten:
Papieren en digitale documenten
Oud dossiernummer:
DSOW/BV02/7227
Ga naar dit stuk:
Bevat:
laatste wijziging 15-05-2024
4 gedigitaliseerd
totaal 4 bestanden
Mijn Studiezaal (inloggen)