Bouwdossiers en vergunningen
OA-0210 Bouwvergunningen Gemeente Zaanstad 1984-1993
Inventaris
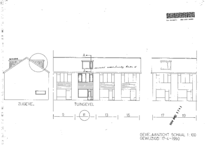
3741 Bouwen van een dakkapel, 1990-06-06
2007508631 of 2007/44890_2 Versie 2 van document 2007508631 of 2007/44890
Beschrijving:
Versie 2 van document 2007508631 of 2007/44890
Ga naar dit stuk:
Is onderdeel van:
laatste wijziging 22-02-2023
1 gedigitaliseerd
Mijn Studiezaal (inloggen)