Bouwdossiers en vergunningen
OA-0209 Bouwvergunningen Gemeente Zaanstad, 1974-1983

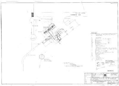
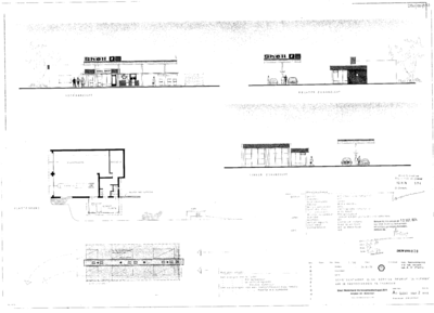
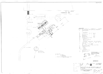
820 Verbouwen van een benzineverkooppunt, 1974-11-12
Datering:
1974-11-12
Beschrijving:
Verbouwen van een benzineverkooppunt
Aanwezige documenten:
Digitale documenten
Oud dossiernummer:
DSOW/BV01/820
Ga naar dit stuk:
laatste wijziging 15-05-2024
6 gedigitaliseerd
totaal 6 bestanden
Mijn Studiezaal (inloggen)