Bouwdossiers en vergunningen
OA-0209 Bouwvergunningen Gemeente Zaanstad, 1974-1983
Inventaris

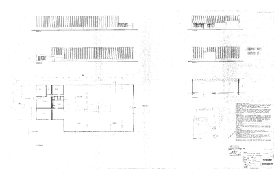
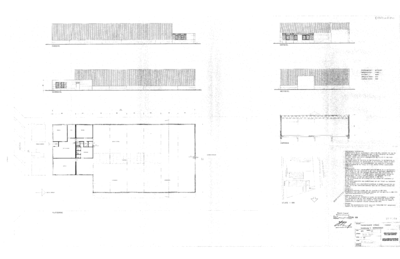
5901 Bouwen van een bedrijfshal, 1979-11-20
Datering:
1979-11-20
Beschrijving:
Bouwen van een bedrijfshal
Aanwezige documenten:
Papieren en digitale documenten
Oud dossiernummer:
DSOW/BV01/5901
Opmerking:
2 mappen
Ga naar dit stuk:
laatste wijziging 15-05-2024
4 gedigitaliseerd
totaal 4 bestanden
Mijn Studiezaal (inloggen)