Bouwdossiers en vergunningen
OA-0210 Bouwvergunningen Gemeente Zaanstad 1984-1993

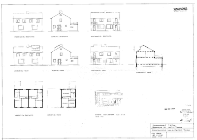
4898 Bouwen van een dakkapel, 1986-03-25
Datering:
1986-03-25
Beschrijving:
Bouwen van een dakkapel
Aanwezige documenten:
Digitale documenten
Oud dossiernummer:
DSOW/BV02/4898
Ga naar dit stuk:
Bevat:
laatste wijziging 15-05-2024
4 gedigitaliseerd
totaal 4 bestanden
Mijn Studiezaal (inloggen)