Bouwdossiers en vergunningen
OA-0210 Bouwvergunningen Gemeente Zaanstad 1984-1993

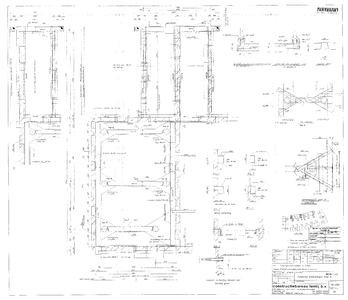
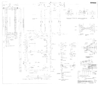
7865 Vernieuwen van de fundering + constructie, 1993-05-10
Datering:
1993-05-10
Beschrijving:
Vernieuwen van de fundering + constructie
Adres:
Zaandam, Herderinstraat 2, 2, 4, 4, 6, 6, 8, 8, 10, 10, 12, 12
Zaandam, Kopermolenstraat 37, 39, 41, 43, 45, 47
Zaandam, Taanmanstraat 2, 4, 6, 8, 10, 12, 14, 16, 18, 20
Zaandam, Tolstraat 1, 3, 5, 7, 9, 11, 13, 15, 17, 19, 21, 23
Aanwezige documenten:
Papieren en digitale documenten
Oud dossiernummer:
DSOW/BV02/7865
Ga naar dit stuk:
Bevat:
laatste wijziging 15-05-2024
6 gedigitaliseerd
totaal 6 bestanden
Mijn Studiezaal (inloggen)