Rechtspersonen
OA-0209 Bouwvergunningen Gemeente Zaanstad, 1974-1983

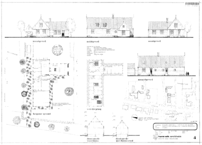
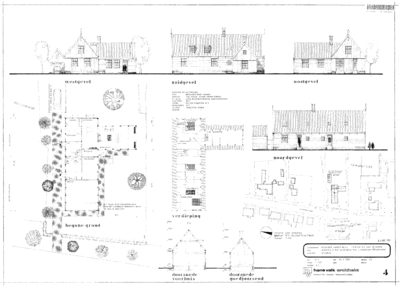
7596 Bouwen van een woning met garage, 1981-06-02
Datering:
1981-06-02
Beschrijving:
Bouwen van een woning met garage
Aanwezige documenten:
Papieren en digitale documenten
Oud dossiernummer:
DSOW/BV01/7596
Opmerking:
2 mappen
Ga naar dit stuk:
laatste wijziging 15-05-2024
4 gedigitaliseerd
totaal 4 bestanden
Mijn Studiezaal (inloggen)